文章详情页
solidworks2020草图绘制与工程图的介绍
浏览:128日期:2023-11-21 13:44:32
在 SOLIDWORKS 中,工程图为您从 3D 零件或装配体模型所生成的 2D 文档。 在 2D CAD 软件中被认为是工程图工具的工具在 SOLIDWORKS 软件中为草图绘制工具。
当在 SOLIDWORKS 中开发模型时,您绘制几何实体(如矩形和圆)作为实体特征(如拉伸、旋转、及切除)的基础。 您可粗略绘制实体,然后准确标注尺寸。
从草图到模型一直到工程图的总过程如下:第1步、在零件文件中,打开一草图并粗略绘制一实体,如矩形。
第2步、准确给草图标注尺寸。
第3步、拉伸草图以形成一 3D 实体基体特征,此将成为零件的基础。
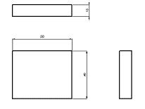
第4步、打开一新工程图,插入零件为 2D 标准三视图,然后插入尺寸。

相关文章:
排行榜

网公网安备